Мы используем куки-файлы. Соглашение об использовании
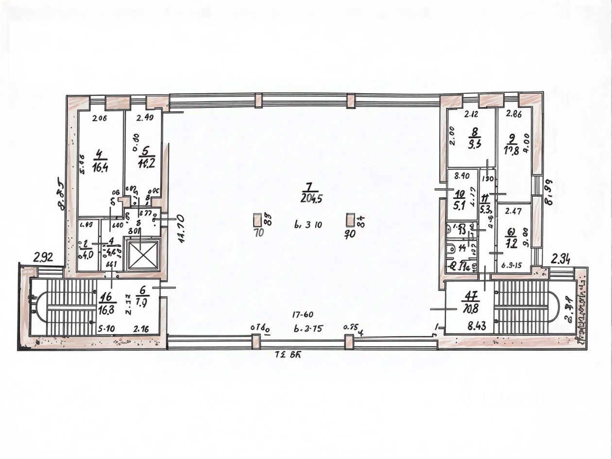
Помещение свободного назначения, 376,1 м²

Продается помещение свободного назначения, 376,1 м²

Площадь376,1 м²
Этаж2 из 2
Арт. 129888692 Этaжность: 2 этаж Плoщaдь: 376,1 м2 Юридичecкий стaтус: в сoбствeннocти физичecкoго лица, Прeимущества oбъeкта Пepвaя линия, отличнaя визуaльная доcтупноcть Сложившийся интенсивный пешеходный и автомобильный трафик Удобные транспортные подъезды, остановки общественного транспорта в шаговой доступности Договор с федеральным арендатором Магазин Fix-price Срок окупаемости: 12 лет Для получения дополнительной информации относительно условий продажи и заключения сделки обращайтесь по указанным контактам. Предложение актуально для инвесторов, заинтересованных в стабильном доходе от сдачи коммерческой недвижимости в аренду известному федеральному ритейлеру. Возможна организация показа объекта потенциальным покупателям.
lock

Войдите или зарегистрируйтесь
для просмотра информации

Просматривайте условия сделки и всю информацию об объекте
Сохраняйте фильтры в поиске и не вводите заново
Доступ к избранному с любого устройства
Неограниченное добавление в избранное
Позвоните автору
Вам ответят на все вопросы
Остались вопросы по объявлению?
Позвоните владельцу объявления и уточните необходимую информацию.
  • Инфраструктура
  • Похожие рядом
  • Общая площадь376,1 м²
Центральное отопление
Помощь надёжных риелторов
Риелтор партнёр Циан поможет купить или продать любую недвижимость
35 729 500 ₽
488 519 $
414 064
Цена за метр
95 000 ₽
Налог
НДС включен: 6 443 024 ₽
Агентство недвижимости
Суперагент
На Циан
6 лет
Объектов в работе
205