55 666 ₽/м²
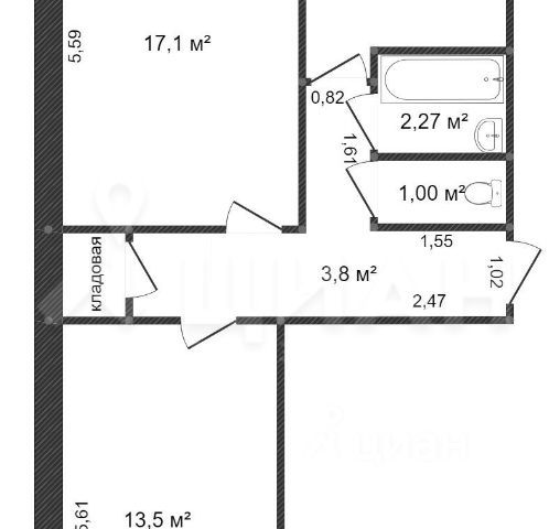
Арт. 127704082 Представляем вашему вниманию уютную трехкомнатную квартиру площадью 50,3 м², которая готова стать вашим личным пространством комфорта и вдохновения! Просторная гостиная позволит вам создать атмосферу домашнего тепла и гостеприимства, идеально подходящую как для семейных вечеров, так и для приема гостей. Две просторные спальни обеспечат каждому жильцу личное пространство для отдыха и восстановления сил после насыщенного дня. Удобная кухня приглашает вас раскрыть кулинарный талант и насладиться процессом приготовления любимых блюд. Здесь каждый найдет уголок для творчества и самовыражения. Особое внимание уделено функциональному зонированию пространства, благодаря чему квартира кажется гораздо больше своей фактической площади. Современный ремонт и продуманная планировка делают проживание комфортным и удобным. Эта квартира станет идеальным выбором для тех, кто ценит комфорт, качество и удобство своего жилища. Создавайте свою историю счастья именно здесь! Успейте приобрести квартиру и получить в подарок электрочайник Продам 3-комнатную квартиру до 3,5 млн. рублей в Волжске.












































































